Centro de recursos para el deporte. Leganés. Madrid

leganes 01
leganes 02
leganes 03
leganes 04
leganes 05
leganes 06
leganes 07
leganes 01 leganes 02 leganes 03 leganes 04 leganes 05 leganes 06 leganes 07

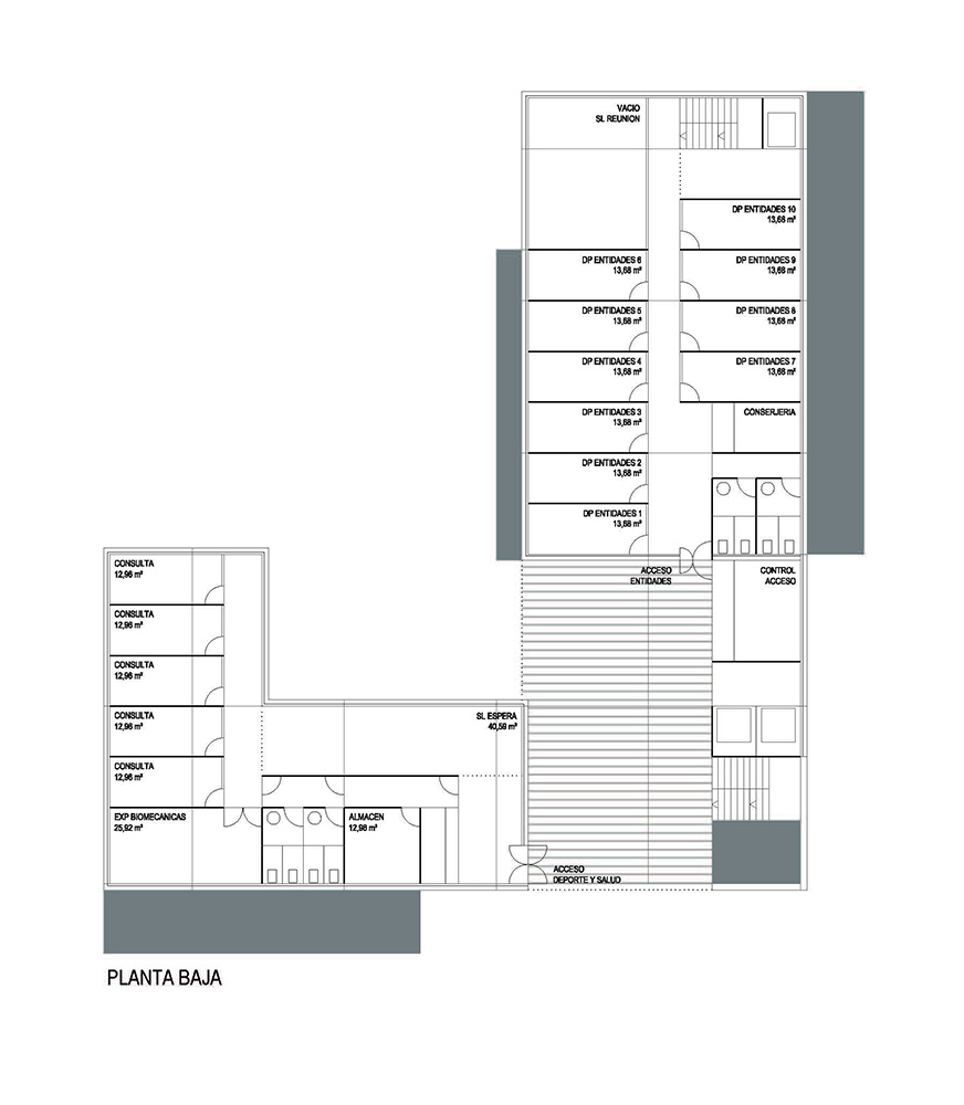
La vocación dinámica del edificio, consecuencia de la posibilidad de crecimiento provocada por las futuras necesidades funcionales, implicará la adopción de un sistema compositivo abierto y flexible; en contra de otras posibles soluciones más compactas.

Se adopta un esquema que, asumiendo la alineación de los linderos laterales, plantea la ubicación de dos ejes de circulación ortogonales, sobre los que se apoyan con cierta libertad una serie de piezas articuladas, a modo de DOMINÓ, contenedoras del programa. Como resultante inmediata de la ordenación adoptada, aparecerá el núcleo principal de comunicación vertical en la intersección de los dos ejes, con el consiguiente beneficio en cuanto a claridad y longitud de los recorridos horizontales. Estos recorridos horizontales también se verán favorecidos por unas inmejorables condiciones de iluminación natural, como consecuencia de la permeabilidad entre las piezas construidas.   

La propuesta, además de acoplarse con serenidad a las particulares condiciones físicas del solar, permitirá crecimientos parciales de la edificación, bien por ampliación de los volúmenes existentes (en planta o en altura), bien por la adicción de otros nuevos en cualquiera de las direcciones posibles.

Esta web utiliza cookies propias y de terceros para su correcto funcionamiento y para fines analíticos. Contiene enlaces a sitios web de terceros con políticas de privacidad ajenas que podrás aceptar o no cuando accedas a ellos. Al hacer clic en el botón Aceptar, acepta el uso de estas tecnologías y el procesamiento de tus datos para estos propósitos. Más información
Privacidad