Reconversión del Centro de Salud de Alaior en Escuela Municipal de Música. Menorca

EM alaior 01
EM alaior 02
EM alaior 03
EM alaior 04
EM alaior 01 EM alaior 02 EM alaior 03 EM alaior 04

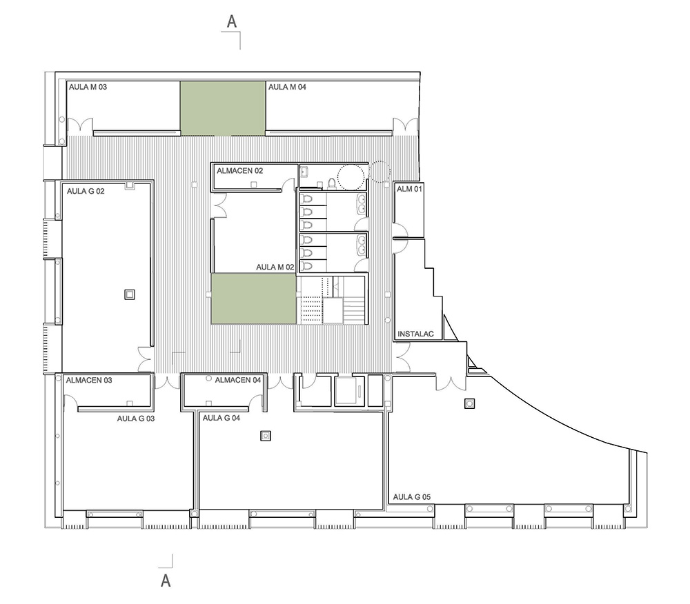
Dado el uso docente musical que se pretende implantar en el edificio, con necesidades de espacios de muy diferentes dimensiones (aulas de ensayo individual y colectiva, despachos… etc), parece aconsejable renunciar a la centralidad actual de la planta en aras, precisamente, a favorecer la diversidad espacial. Para ello, se propone reconstruir la cubierta, introduciendo sendos patios asimétricos, alrededor de los cuales se organiza todo el nuevo programa funcional a implantar.

Las especiales características de estas aulas, con unas altas necesidades de aislamiento acústico, aconseja, además de introducir distintas capas en las tabiquerías de separación que garanticen el mismo, la adopción de una doble piel de cerramiento exterior. Así, sin alterar la ocupación marcada por la proyección de la cubierta, se proyecta una nueva envolvente de paneles ligeros prefabricados, a nivel del voladizo actual, generando una fachada transventilada que optimiza el rendimiento térmico y acústico del edificio . Esta nueva piel se extiende a la cubierta, resolviendo su estanqueidad por debajo de ella.

Esta web utiliza cookies propias y de terceros para su correcto funcionamiento y para fines analíticos. Contiene enlaces a sitios web de terceros con políticas de privacidad ajenas que podrás aceptar o no cuando accedas a ellos. Al hacer clic en el botón Aceptar, acepta el uso de estas tecnologías y el procesamiento de tus datos para estos propósitos. Más información
Privacidad