Centro de Día de Alaior. Menorca
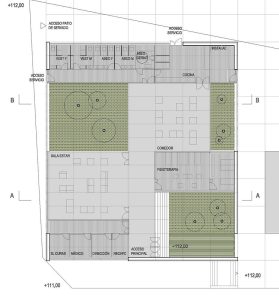
Se desarrolla la totalidad del programa en una pieza de geometría rectangular de una única planta de altura. Se pretende establecer una disposición clara y sencilla para los usuarios, diferenciando los espacios principales, entre sí, y los espacios de servicio, mediante la aparición de una serie de patios que perforan el volumen inicial y organizan, alrededor de ellos, todas las dependencias del Centro. La relación fluida y continua interior-exterior, se hace así argumento principal en la concepción del proyecto, con la aparición de unos frentes acristalados practicables, dando frente a los patios, que permiten, mediante su total apertura, convertir las dos estancias principales (Sala de Descanso y Comedor) en porches abiertos hacia los jardines, como extensión de ellas.